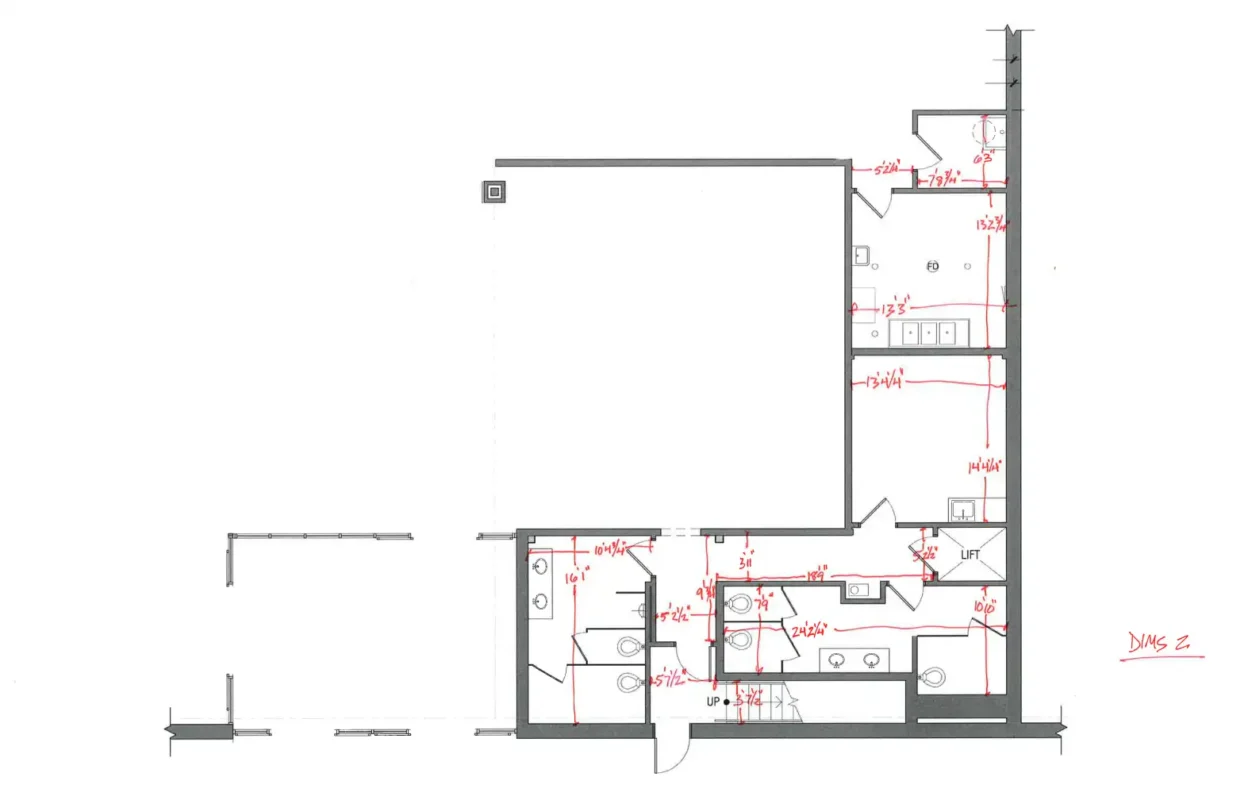
In adaptive reuse projects, an existing condition model is the foundation for every informed design decision. Before architects and engineers can plan what should change, they first need a reliable digital representation of what already exists.
That foundation cannot be built on assumptions. It requires accurate survey data, a clear understanding of spatial conditions, and a disciplined workflow for building an existing condition model in Revit.
At AXANH, we approach the existing condition model as a critical step in reducing uncertainty for adaptive reuse teams. By combining survey documentation, Matterport-based spatial reference, Revit modeling, and tolerance control, we help create a dependable digital baseline for renovation and reuse projects.
This is where existing conditions modeling becomes essential for reducing risk before design moves into deeper adaptive reuse decisions.
Why Existing Conditions Modeling Matters in Adaptive Reuse
Adaptive reuse is fundamentally different from new construction. The project team is not starting from a blank site. It is working with inherited realities: structural spans, uneven dimensions, hidden services, undocumented changes, aging materials, and field conditions that often differ from legacy drawings.
That is why an existing conditions model should never be treated as a minor setup task.
- understand the true spatial configuration of the building
- verify dimensions before making planning decisions
- identify which elements can be retained, modified, or removed
- coordinate architecture, structure, and MEP systems more effectively
- reduce redesign caused by inaccurate assumptions
- move into adaptive reuse design with greater control
In adaptive reuse, a strong design solution depends on a strong understanding of what is already there. Without that baseline, even a well-developed concept can be undermined by field reality later.
The AXANH Workflow: Survey Data to Matterport to Revit Modeling to Tolerance Control
At AXANH, existing conditions modeling follows a clear and repeatable workflow:
Survey data → Matterport → Revit modeling → Tolerance control
Each step serves a specific role, and the final value of the model depends on how carefully those inputs are reconciled. This process-driven mindset aligns with AXANH’s internal emphasis on QA/QC systems, standardization, knowledge tools, and partner delivery discipline rather than one-off drafting output.
A disciplined existing conditions modeling workflow helps ensure that every major design move is based on verified information rather than assumptions.
1. Survey Data: Establishing Measured Reality
Every existing conditions model starts with source information. In many projects, this source package comes from a field survey team documenting dimensions, elevations, structural relationships, and visible architectural conditions on site.
These inputs may include PDF survey drawings, marked-up plans, dimension notes, field photos, and related supporting documentation. However, receiving data is not the same as having model-ready information.
At AXANH, the first step is to review, standardize, and organize the survey package so it can support reliable modeling in Revit. This includes:
- checking consistency across plans, sections, and elevations
- identifying missing dimensions or conflicting information
- verifying level references and datum assumptions
- distinguishing confirmed conditions from inferred conditions
- structuring the input for model development
This step is especially important in adaptive reuse projects, where existing documentation is often incomplete or no longer fully aligned with actual site conditions. A survey drawing set may look usable at first glance, but unless it is carefully interpreted, it can lead to a model that appears complete while still carrying hidden inaccuracies.
That is why AXANH treats survey data as measured evidence, not simply drafting input.
For related technical support across the broader service ecosystem, readers can also explore AXA Engineers’ construction survey drawing services.
2. Matterport: Adding Three-Dimensional Spatial Context
Survey drawings are essential, but they do not always communicate space the way a design team needs to understand it. That is where Matterport becomes highly valuable.
Matterport provides an accessible three-dimensional view of the building’s spatial reality. It helps the team interpret room relationships, ceiling conditions, vertical transitions, architectural features, and contextual information that may be difficult to read from 2D survey drawings alone.
At AXANH, Matterport is not used as a substitute for measured survey information. It is used as a cross-verification layer.
That distinction matters because no single source is perfect. Manual field measurements can contain localized inconsistencies. Digital capture may have blind spots or limitations. Legacy drawings may not reflect current conditions. By comparing these sources against each other, AXANH improves the reliability of the final model.
- room-to-room spatial relationships
- ceiling conditions and visible service congestion
- architectural element placement
- structural positioning in context
- transitional spaces that are hard to interpret in 2D
- discrepancies between visual conditions and documented dimensions
This kind of cross-checking aligns with AXANH’s broader brand promise of project certainty, process transparency, and technically precise delivery.
For broader digital reconstruction and BIM delivery needs, AXA Engineers’ BIM outsourcing services can serve as a relevant internal support path within the same technical ecosystem.
3. Revit Modeling: Turning Fragmented Data into a Usable Existing Conditions Model

Once the survey package has been reviewed and Matterport has been used to verify spatial relationships, AXANH proceeds with Revit modeling.
This is where disconnected information becomes a coordinated building model.
For adaptive reuse teams, existing conditions modeling in Revit creates a more dependable basis for coordination, planning, and phased decision-making.
The existing conditions model is developed to represent the building’s actual layout, dimensions, and existing components in a way that supports downstream design and coordination. Depending on the project scope, the model may include:
- architectural layouts and room boundaries
- levels and key vertical relationships
- walls, doors, windows, ceilings, and major architectural elements
- structural framing, trusses, girder trusses, and load-bearing components
- visible and accessible MEP systems affecting reuse planning
- critical service elements above ceilings or within walls where data is available
- distinctions that support later demolition or renovation planning
For adaptive reuse, the value of Revit is not just geometric representation. It is the ability to organize existing building information into a coordinated digital environment that supports decision-making.
A useful existing conditions model should help teams answer real project questions such as:
- Which elements are reliable enough to design around?
- Where are the critical structural constraints?
- Which MEP routes may conflict with future space planning?
- What can realistically be retained, modified, or removed?
- Which areas require further field verification before design progresses?
A good model is not only accurate in geometry. It is structured in a way that helps teams work more intelligently.
4. Tolerance Control: Managing Deviations Throughout the Modeling Process
One of the most important realities of existing-building work is that discrepancies are unavoidable.
Survey data, Matterport capture, field notes, legacy documentation, and real-world conditions will not always align perfectly. The real value of the modeling team lies in how those differences are identified, evaluated, and controlled.
At AXANH, tolerance control is not treated as a final review task. It is built into the modeling process from start to finish.
The team continuously cross-checks key dimensions, elevations, spans, alignments, and visible conditions across all available sources. When discrepancies appear, they are reviewed carefully and adjusted based on the most reliable evidence and the intended use of the model.
For this workflow, tolerances are evaluated against project-defined acceptable limits, and deviations are managed to remain within a tightly controlled range, not exceeding one inch where the available source quality and project scope support that level of precision.
- planning efficiency
- clear height assumptions
- structural coordination
- MEP routing decisions
- demolition strategy
- layout feasibility
A model that is geometrically close but not decision-ready can still create significant downstream risk. That is why AXANH emphasizes controlled accuracy, not visual completeness alone
Modeling Structural and MEP Existing Conditions for Better Adaptive Reuse Decisions
In many adaptive reuse projects, the real complexity lies beyond walls and room layouts.
Structural systems such as trusses and girder trusses must be modeled accurately in terms of location, spacing, and elevation because they shape what the future design can realistically accommodate. If these elements are represented incorrectly, the project team may move too far forward with assumptions that later prove unworkable.
The same applies to MEP systems.
Above-ceiling services, concealed piping, and routing constraints often become major challenges during renovation. Without a clear view of where these systems run and how they interact with the existing building, design teams can face unnecessary clashes, redesign, and costly revisions.
That is why AXANH’s existing conditions modeling workflow can extend beyond architecture into structural and MEP scope when the project inputs support that level of detail.
What Owners and Design Teams Gain from a Reliable Existing Conditions Model
For owners, a reliable existing conditions model creates better visibility before major design and construction decisions are made. It supports more informed conversations about scope, risk, cost, and feasibility.
For architects, engineers, and consultants, it creates a shared and dependable reference point. That common baseline improves coordination and reduces friction caused by inconsistent assumptions between disciplines.
The result is not absolute certainty. Existing-building work will always involve unknowns. But with a disciplined workflow, those unknowns become more visible, more manageable, and less likely to disrupt the project later.
That is the practical value AXANH brings to adaptive reuse projects.
We help teams move from fragmented building information to a coordinated digital foundation, one that supports design, improves collaboration, and reduces avoidable risk.
Why AXANH Is a Strong Partner for Existing Conditions Modeling
AXANH does not approach existing conditions modeling as a drafting-only task. We approach it as a responsibility to build a dependable design foundation.
We treat existing conditions modeling as a design-enabling process that helps owners and consultants move forward with greater clarity and control.
Our process combines:
- structured intake and review of survey data
- spatial cross-verification through Matterport
- disciplined Revit modeling of architectural, structural, and critical MEP scope
- continuous reconciliation across multiple data sources
- controlled deviation management based on project tolerances
- delivery thinking focused on adaptive reuse decisions, not just model completion
This reflects how AXANH works more broadly: not simply delivering output, but helping clients move forward with better information and greater confidence.
Need a Reliable Existing Conditions Model for Your Adaptive Reuse Project?
AXANH helps owners and design teams build dependable Revit-based existing conditions models using survey data, MaStterport verification, and disciplined tolerance control.
FAQ
What is an existing conditions model?
An existing conditions model is a digital representation of a building’s current physical state, developed from survey data, site observations, and digital capture sources. In adaptive reuse and renovation, it becomes the baseline for planning, coordination, demolition strategy, and design development.
Why is Matterport useful in existing conditions modeling?
Matterport provides visual and spatial context that helps teams understand room relationships, ceiling conditions, and architectural features more clearly. It is especially useful as a cross-checking tool alongside measured survey data.
Why use Revit for existing conditions modeling?
Revit helps organize existing building information into a coordinated model environment that supports documentation, visualization, phasing, and multi-disciplinary collaboration. This makes it especially valuable for renovation and adaptive reuse work.
How accurate should an existing conditions model be?
Accuracy should always align with project scope, intended use, and source quality. In a disciplined workflow, deviations should be reviewed continuously and maintained within agreed acceptable limits. In this type of workflow, AXANH targets tolerance control not exceeding one inch where source quality and project scope support that threshold.
Can an existing conditions model include structural and MEP systems?
Yes. Depending on available field data and project requirements, the model can include structural framing, trusses, concealed piping, and key MEP systems that affect future renovation planning and coordination.
Conclusion
In adaptive reuse, good design depends on a clear understanding of the building before major decisions are made. A reliable existing conditions model provides that clarity. It connects measured survey information, spatial context, digital reconstruction, and controlled tolerance management into a dependable design foundation.
At AXANH, we help owners and design teams build that foundation through a clear workflow: survey data review, Matterport-based cross-verification, Revit modeling, and ongoing deviation control.
If your team needs a reliable existing conditions model to support an adaptive reuse or renovation project, contact AXANH to discuss how we can support your project from the very first step.
Effective existing conditions modeling gives architects, engineers, and owners a clearer foundation for renovation planning, coordination, and risk reduction.
External references: Autodesk Revit renovation phases and guidance on adapting buildings for new use.

